Mgr Smitstraat 10, BRIELLE

verkocht

Details

Overdracht

Status
verkocht
Aanvaarding
in overleg

Bouw

Soort woning
woonhuis
Soort woonhuis
eengezinswoning
Type woonhuis
tussenwoning
Aantal woonlagen
3
Kwaliteit
luxe
Bouwvorm
bestaande bouw
Bouwjaar
1969
Huidige bestemming
woonruimte
Onderhoud binnen
goed tot uitstekend
Onderhoud buiten
goed tot uitstekend
Dak
plat dak
Voorzieningen
mechanische ventilatie

Energie

Energielabel
C
Warm water
c.v.-ketel

Oppervlakten en inhoud

Woonoppervlakte
130 m²
Perceeloppervlakte
125 m²
Inhoud
560 m³
Inpandige ruimte oppervlakte
29 m²
Buitenruimte oppervlakte
29 m²

Indeling

Aantal kamers
4
Aantal slaapkamers
3

Buitenruimte

Ligging
in woonwijk
Tuin
achtertuin met een oppervlakte van 50 m² en is gelegen op het noordwesten

Bergruimte

Parkeergelegenheid
openbaar parkeren

Omschrijving

Deze fraaie en instapklare drive-in woning is recent compleet gerenoveerd en verkeert in nieuw staat.

De woning is gelegen in de kindvriendelijke wijk “Rugge” met een speelveld, het winkelcentrum Ruggeplein, scholen en
openbaar vervoer om de hoek.

De begane grond is heerlijk ruim: zo is er ee... lees meer

Deze fraaie en instapklare drive-in woning is recent compleet gerenoveerd en verkeert in nieuw staat.

De woning is gelegen in de kindvriendelijke wijk “Rugge” met een speelveld, het winkelcentrum Ruggeplein, scholen en
openbaar vervoer om de hoek.

De begane grond is heerlijk ruim: zo is er een grote garage aan de voorzijde en een tuinkamer met toegang tot een heerlijk verzorgde achtertuin met veel privacy.

Op de 1ste verdieping is de sfeervolle woonkamer met balkon en vrij zicht op een speelveld met bomen. Verder een keuken aan de achterzijde met balkon en op de 2e verdieping zijn 2 slaapkamers, waarvan 1 met balkon en een royale en luxe badkamer.

De wijk Rugge is net buiten de Vesting gelegen. In deze rustige en groene woonwijk vindt u in het hart van de wijk het Ruggeplein; een klein en compact winkelcentrum met een supermarkt, een drogist, een bloemenwinkel, een bakker en een snackbar.

Het gezellige centrum van de oude vestigingsstad Brielle met al haar voorzieningen en horeca bevindt zich op loopafstand. Bovendien liggen het openbaar vervoer, scholen, supermarkten, het medisch centrum, sportaccommodaties en uitvalswegen om de hoek. Brielle vormt een prima uitvalsbasis voor de haven, industrie, Europoort, Maasvlakte en Botlek en ook Rotterdam is uitstekend te bereiken. Voor de natuur-, bos- en strandliefhebbers zijn Oostvoorne, Rockanje en ook de haven van Hellevoetsluis prima te bereiken. Ook natuurliefhebbers zijn hier op de juiste plek want het Spui en het Brielse Meer zijn nabij gelegen..

INDELING:
Begane grond:
Ruime entree/hal met garderobe, meterkast, trapopgang naar de 1e verdieping en toegang tot de ruime garage en de tuinkamer.
De garage is over de gehele lengte van de woning. En heeft aan de voorzijde een automatische- en op afstand bedienbare garagedeur en aan de achterzijde een tuindeur. In de garage is de een spoelbak v.v. zowel warm- als koud water.
De naastgelegen tuinkamer heeft een prima lichtinval, opstelplek voor zowel wasmachine als -droger, toegang tot de tuin en er is een grote vaste kast.
De gehele begane grond, met uitzondering van de garage, is v.v. een nieuwe laminaatvloer (2024).

1e Verdieping:
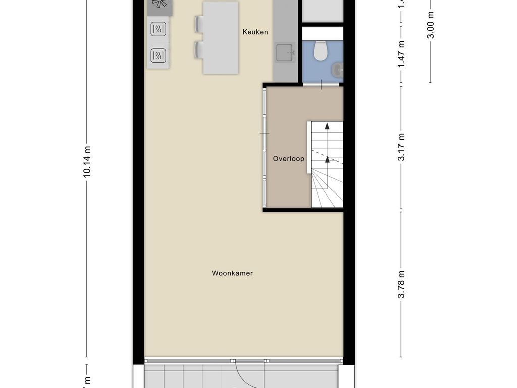
De centrale overloop geeft toegang tot het toilet, de trapopgang naar de 2e verdieping en heeft een kozijn met groot raam en glazen deur richting de woonkamer.
Het moderne toilet is hangend en v.v. fonteintje.
De open keuken bevindt zich aan de achterzijde en is v.v. nieuwe parallel wandopstelling met een zitbar in het midden. De keuken is zeer fraai uitgevoerd met superieure inbouwapparatuur (o.a. inductiekookplaat, een rvs afzuigkap, combimagnetron, koelkast met vriesvak, vaatwasser, etc.)
De zonnige woonkamer is gelegen aan de voorzijde en heeft toegang tot een ruim zonnig balkon met vrij uitzicht over het speelveld. Bijzonder detail hier is de automatisch bedienbare zonneluifel.
Ook vanuit de keuken is er toegang tot een balkon met ruime berging. Hier is de opstelplaats van de cv-ketel. De gehele verdieping is v.v. een laminaatvloer (2024).

2e Verdieping:
Centrale overloop met toegang tot 3 slaapkamers en de badkamer.
De slaapkamer aan de achterzijde is gelegen over de gehele breedte en heeft toegang tot het balkon.
De slaapkamer aan de voorzijde heeft vrij zicht op het speelveld met bomen.
De badkamer is geheel betegeld en v.v. inloopdouche, toilet en badkamermeubel v.v. wastafel, spiegel en verlichting.
De gehele verdieping is v.v. een laminaatvloer (2024).

Tuin:
De achtertuin is op het noordwesten v.v. een afsluitbare poort aan de achterkant en bestaat deels uit bestrating en vaste beplanting.

Bijzonderheden:
- De gehele woning is v.v. nieuwe kunststof kozijnen (m.u.v. tuindeur garage en de deur van de berging op de 1ste verdieping).
- HR-ketel (bj. 2024)
- Tuin opnieuw aangelegd
- Zonnepanelen

Wij behartigen de belangen van de verkopende partij.
Neem uw eigen NVM aankoop servicemakelaar mee!
Alle verstrekte informatie moet beschouwd worden als uitnodiging tot het doen van een bod of om in onderhandeling te treden.
Er kunnen geen rechten worden ontleend aan deze woninginformatie.

Locatie

Contact opnemen